موقع مراجعة سنوات الاعدادي

college.mourajaa.com

فرض مراقبة سنة الثامنة في التربية التكنولوجية الثلاثي الثالث

فرض مراقبة سنة الثامنة في التربية التكنولوجية الثلاثي الثالث

فرض مراقبة سنة الثامنة في التربية التكنولوجية الثلاثي الثالث

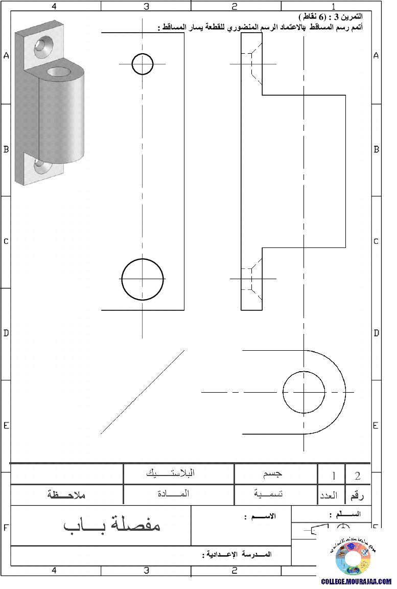
فرض مراقبة لتلاميذ السنة الثامنة اساسي في مادة التربية التكنولوجية في الثلاثي الثالث في صيغة صور او يمكن تحميل الملف كاملا اسفل الصفحة

فرض مراقبة سنة الثامنة في التربية التكنولوجية الثلاثي الثالث

امتحانات مراقبة الثلاثي الثالث في مادة التربية التكنولوجية سنة الثامنة اساسي

امتحان مراقبة للتحميل سنة الثامنة اساسي الثلاثي الثالث في مادة التربية التكنولوجية

تحميل فرض مراقبة سنة الثامنة في التربية التكنولوجية الثلاثي الثالث في صيغة ملف او صور

تحميل الملف كاملا

المزيد من الامتحانات و الفروض لتلاميذ سنة الثامنة اساسي في مادة التربية التكنولوجية جاهزة للتحميل